メゾンドアイ弐番館501号室のご紹介

物件内容
- 物件名 メゾンドアイ弐番館501号室
- 築年数 1989年4月(築37年) 大規模修繕実施(2025年10月)
- 所在地 千葉県松戸市松飛台236番地16
- 最寄り駅 新京成線 くぬぎ山駅
- 部屋番号 501号室 (総戸数42室)
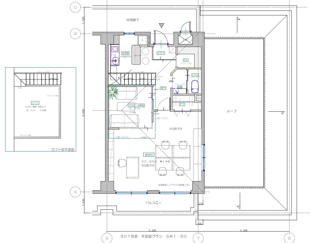
- 間取り 45.68㎡(ご希望通り)
東向き最上階の角部屋です。
賃貸なのにオーダーメイト設計。現況はスケルトン状態です。ご希望の間取りに合わせて設計が可能です。天井高が高いので、ロフト、アティックをお創りすることもできます。
事務所、事務所兼居宅としてご利用も可能です。また、書類・書籍保管庫・絵画貯蔵保管庫など、天井高を思い切り活用した収納スペースとしてもご利用いただけます。
設備内容(現況スケルトン)
- 水栓・都市ガス
- 防音設備可(音楽教室の場合、別途ご相談ください)
- トイレ、洗面室設置可
- サッシ交換予定
- 床下上下管の新設

くぬぎ山駅からの道案内
(パノラマ画像)
賃貸条件
- 家賃 100,000円/月
- 共益費 4,000円/月
- 駐車料金 11,000円/月
- 敷金・礼金 無
- 更新料 賃料1ヶ月
ただし、賃貸期間中に近隣トラブル・延滞なしの場合0.5ヶ月にする割引制度あり - 入居条件
保証人 指定保証会社を利用
賠責保証 火災保険加入条件(2年更新)
初期費用 弊社媒介の場合のみ仲介手数料は無料
初期費用は下記内容より計算してください

- 当月日割り家賃 無料
(1日に入居しても当月は無料です) - 前家賃 1ヶ月
- 保証会社保証料 最大賃料の1ヶ月分
- 賠責保険 保険料2万円程度(2年更新)
- 店舗・事務所の場合
保証金 (10ヶ月 2年償却)
賃貸なのに間取りオーダーメイド
設備内容









立地
周辺環境






“メゾンドアイ弐番館501号室のご紹介” に対して1件のコメントがあります。